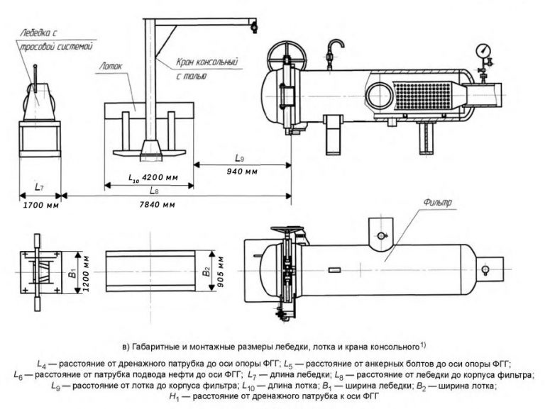
Вы здесь
Главная > Фильтры > Фильтры-грязеуловители горизонтальные ФГГ для нефти и нефтепродуктов в Вологде > Фильтры-грязеуловители горизонтальные ФГГ-700 в Вологде
Наверх
Яндекс.Метрика